Бронируйте место
со скидкой
10 дней
20 часов
30 минут
40 секунд
Скидка -25% до 17 апреля

Архитектурное проектирование
малоэтажных жилых зданий

Освойте малоэтажное проектирование всего за 1 год, чтобы работать в компаниях или выполнять индивидуальные заказы и зарабатывать от 80 000 рублей в месяц.

Архитектурные проекты

малоэтажных блокированного
и индивидуального
жилых домов в портфолио

Диплом

о профессиональной
переподготовке

Обучение

в институте-партнере
АНО ДПО «НАРХСИ»

Профессия архитектора малоэтажных зданий в 2025 году

Малоэтажное строительство в России развивается активными темпами. За 2025 год в секторе индивидуального жилищного строительства было введено в эксплуатацию более 59 млн кв. м — это рекордный показатель. Для разработки качественных проектов коттеджей и таунхаусов, отвечающих всем нормативным, техническим и потребительским требованиям, необходимы грамотные архитекторы.

Почему архитектор со специализацией в малоэтажном строительстве?

Вы сможете
  • Заниматься проектированием в востребованном секторе — строительстве коттеджей и таунхаусов.
  • Начать работу в строительной компании и расти по карьерной лестнице.
  • Работать на себя, выполняя заказы для индивидуальных клиентов на фрилансе.
Доход

от 50 000P

уровень зарплаты младшего архитектора

от 150 000P

получает главный архитектор проекта
Вакансии

более 5000

вакансий для архитекторов малоэтажного строительства размещено на hh.ru

каждая 8-ая

вакансия подразумевает удаленный формат работы

Кому подойдет

Новичкам
которые хотят получить востребованную профессию архитектора малоэтажного строительства:
  • Научитесь выполнять архитектурное проектирование индивидуальных коттеджей и таунхаусов с 0.
  • Смените профессию на более перспективную и высокооплачиваемую.
  • Получите конкретные преимущества на рынке труда — 2 проекта в портфолио и диплом с квалификацией архитектора.
Практикующим специалистам
нацеленным на карьерный и финансовый рост:
  • Получите глубокие и актуальные знания в области архитектурного проектирования малоэтажных зданий.
  • Научитесь эффективнее выполнять свои должностные обязанности, чтобы зарабатывать больше.
  • Откроете перед собой возможности для вертикального и горизонтального роста.

Мы знаем, о чем вы беспокоитесь

Ваше резюме после обучения

Навыки
  • Знаю теорию архитектуры, колористику, композицию и эргономику, историю архитектуры и градостроительства.
  • Ориентируюсь в документации, основных нормативах в области строительства малоэтажных зданий.
  • Разбираюсь в видах и свойствах строительных материалов и конструкций, могу выполнять расчеты по архитектурной физике.
  • Могу разрабатывать архитектурные проекты малоэтажных зданий — от схемы участка до ведомостей и экспликаций.
  • Умею разрабатывать проектную документацию в части разделов АР и АС, оформлять текстовые и графические материалы.
  • Работаю с компьютерной графикой в ArchiCAD — могу выполнять построение объема, оформлять чертежи, 3D-документы, макеты и публикации.

Инструменты, которые вы изучите
ArchiCAD

Ваши документы

Диплом АНО ДПО «НАРХСИ» о профессиональной переподготовке с присвоением квалификации «Архитектор»

Ваше портфолио после обучения

Индивидуальный жилой дом
Блокированный дом
Описание планировочного решения
Описание принятых конструкций
План кровли
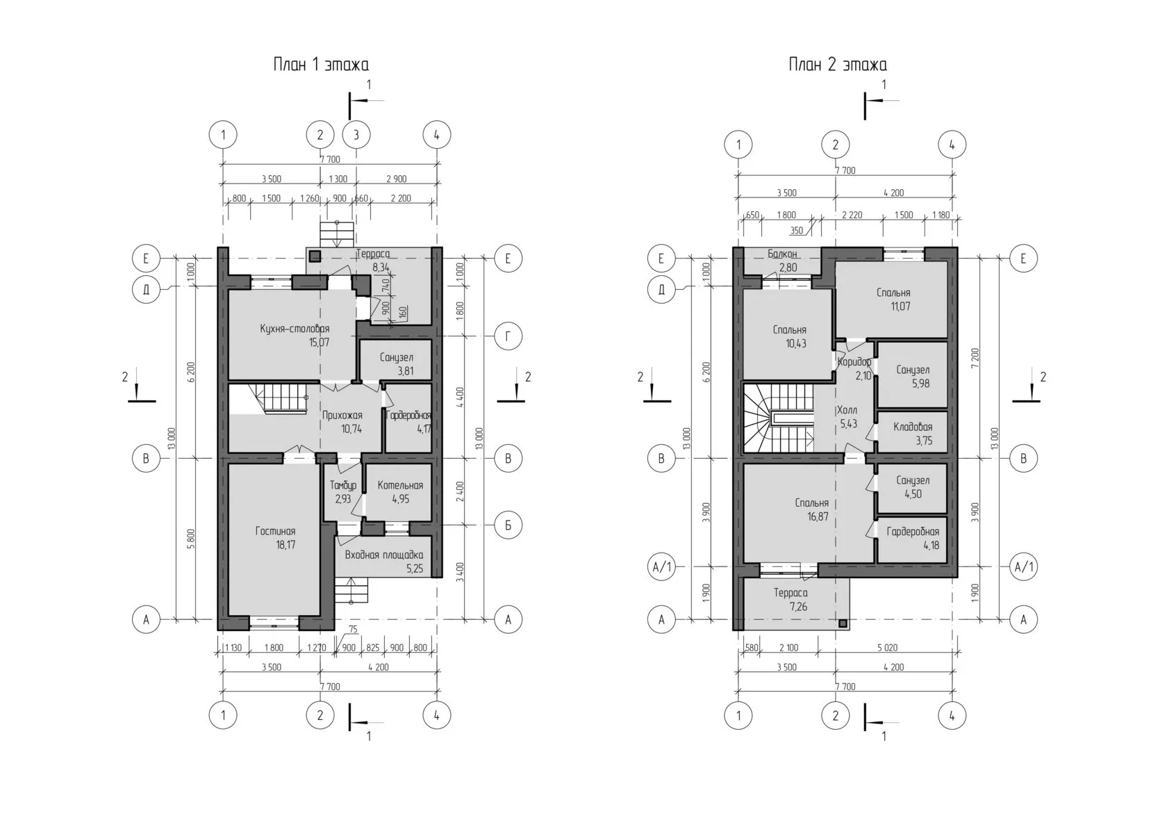
План 1 и 2 этажа
Разрезы 1-1 и 2-2
Схема планировочной организации кварталов блокированных жилых домов
Визуализация 3-D модели здания
Визуализация 3-D модели здания
Схема планировочной организации земельного участка
Схема планировочной организации земельного участка

Ваша карьерная траектория

Младший архитектор

от 50 000 ₽

Ведущий архитектор

от 100 000 ₽

Главный архитектор проекта

от 150 000 ₽

Руководитель архитектурного бюро

от 200 000 ₽

Архитектор

от 80 000 ₽

Руководитель архитектурной группы

от 130 000 ₽

Руководитель творческой архитектурной мастерской

от 180 000 ₽

Младший архитектор

от 50 000 ₽

Архитектор

от 80 000 ₽

Ведущий архитектор

от 100 000 ₽

Руководитель архитектурной группы

от 130 000 ₽

Главный архитектор проекта

от 150 000 ₽

Руководитель творческой архитектурной мастерской

от 180 000 ₽

Руководитель архитектурного бюро

от 200 000 ₽

Курсы по архитектурному проектированию полностью соответствуют требованиям, которые содержатся в Профстандарте «Архитектор», утвержденном приказом Министерства труда и социальной защиты Российской Федерации от 06.04.2022 № 202н.

Программа обучения

Программа состоит из 20 дисциплин и рассчитана на 52 учебные недели

  • 1. Введение в профессиональную деятельность архитектора
    Содержание курса:
    • Особенности архитектурной деятельности в современном обществе
    • Тенденции современного развития профессии архитектора
    • Базовые понятия архитектурного проектирования. Основные требования, предъявляемые к зданиям. Система нормативных документов в строительстве
    Задания на курсе:
    • Работа с нормативными базами
    • Оценка профессиональных компетенций (умений и навыков) архитектора
    Результат:
    • Понимание задач архитектора, знание профессиональной терминологии и основных требований в сфере строительства и архитектуры
    14 часов теории
    16 часов практики
  • 2. История архитектуры и градостроительства
    Содержание курса:
    • Архитектура и искусство первобытного общества и Древнего Египта, Древней Греции и Древнего Рима
    • Архитектура и искусство Средних веков, Древней Руси и эпохи Возрождения
    • Архитектура и искусство XVII–XVIII вв. Архитектура и искусство России XVIII вв. Архитектура и искусство XIX в. Русское искусство XIX в.
    • Архитектура и изобразительное искусство 1-ой и 2-ой половины ХХ в.
    Задания на курсе:
    • Составление словаря архитектурных терминов
    • Приведение примеров архитектурных сооружений различных временных периодов
    Результат:
    • Знание основных исторических этапов развития архитектуры и градостроительства в мире
    24 часа теории
    24 часа практики
  • 3. Архитектурный рисунок
    Содержание курса:
    • Основы, техники и базовые принципы в рисунке
    • Архитектурный рисунок: рисование малых архитектурных форм
    • Рисование орнаментов (деревянные наличники, кованые элементы, лепнина и т. п.)
    • Рисование общих видов зданий, сооружений и их групп
    • Рисование элементов окружающей среды — антураж (растения, мебель, транспорт, пейзажные композиции, люди)
    Задания на курсе:
    • Выполнение рисунка разными выразительными средствами и материалами
    • Рисунок архитектурных элементов
    Результат:
    • Умение рисовать от руки архитектурные элементы для своих проектов
    20 часов теории
    34 часа практики
  • 4. Основы архитектурной композиции
    Содержание курса:
    • Общее понятие о композиции
    • Основные средства архитектурной композиции
    • Виды композиции. Выявление объемно-пространственных форм
    Задания на курсе:
    • Выполнение композиции на плоскости
    • Выполнение композиций пространства и объемной формы
    Результат:
    • Понимание общих принципов архитектурной композиции, умение применять их на практике
    24 часа теории
    30 часов практики
  • 5. Архитектурная перспектива. Архитектурно-строительное черчение
    Содержание курса:
    • Аксонометрия, архитектурная перспектива
    • Построение теней: тени в ортогональных проекциях; построение теней в перспективе; предпосылки для развития перспективы
    • Оформление архитектурно-строительной документации
    • Архитектурно-строительное черчение: архитектурная графика и строительные чертежи; рабочие чертежи архитектурных решений; рабочие чертежи конструктивных решений
    Задания на курсе:
    • Построение аксонометрии крестового свода. Построение перспективного изображения арки. Построение перспективного изображения группы объемов
    • Оформление чертежей в соответствии с действующими нормативными документами. Оформление текстового документа проектной документации
    Результат:
    • Знание законов архитектурной перспективы, умение строить перспективные изображения
    • Владение основами архитектурно-строительного черчения, навык оформления рабочих чертежей
    30 часов теории
    30 часов практики
  • 6. Архитектурная колористика. Колористика города
    Содержание курса:
    • Введение в архитектурную колористику
    • Цвет в пластической культуре 20 века
    • Основы проектирования колористики города
    Задания на курсе:
    • Создание вручную цветового круга Иттена и цветовых условных копий
    Результат:
    • Знание принципов колористики, понимание, как они применяются в архитектуре и градостроительстве
    20 часов теории
    34 часа практики
  • 7. Практикум: компьютерная графика в архитектуре малоэтажных жилых зданий
    Содержание курса:
    • Основы работы в Graphisoft ArchiCAD
    • Поиск планировочного решения
    • Построение объема зданий
    • Оформление чертежей, 3D-документы, карты, макеты и публикация; визуализация и публикация проекта
    • Формообразование и концептуальное проектирование на основе морфа
    Задания на курсе:
    • Выполнение отдельных чертежей в соответствии с действующими нормативными документами по оформлению проектной документации
    • Выполнение 3D-модели в соответствии с планом и фасадом здания
    Результат:
    • Навыки работы в профессиональной программе ArchiCAD: умение выполнять с ее помощью чертежи, 3D-модели зданий и другие графические составляющие проектов
    40 часов теории
    50 часов практики
  • 8. Основы эргономики
    Содержание курса:
    • Общие данные: введение в курс
    • Эргономика объектов наполнения среды
    • Визуальные требования: свет; цвет
    • Основные сведения по использованию в интерьере
    • Цвет в производственной среде
    • Универсальный дизайн и безбарьерная среда: общие понятия
    • Требования к пешеходным путям и к участкам, входным группам, горизонтальным путям, внутренним пространствам, проектированию санузлов
    Задания на курсе:
    • Разработка плана меблировки квартиры с учетом эргономических правил
    Результат:
    • Умение применять принципы эргономики в проектировании жилых помещений и прилегающей территории
    32 часа теории
    28 часов практики
  • 9. Практикум: архитектурное проектирование блокированного жилого дома
    Содержание курса:
    • Освоение технологического процесса, протекающего в здании, и его влияния на архитектуру здания, приобретение базовых знаний для проектирования
    • Конструктивные схемы и системы зданий, типоразмеры конструкций зданий
    • Конструирование разных типов фундаментов
    • Проектирование противопожарных стен, конструкции здания с учетом норм по предотвращению пожара, отделочные материалы здания
    • Гармоничные решения архитектурной среды блокированной малоэтажной застройки
    Задания на курсе:
    • Выполнение проекта планировочного решения (предварительный эскиз) с учетом требований эргономики, противопожарной защиты, функциональных и конструктивных требований, разработка итогового планировочного решения
    • Выполнение планов здания, разреза по зданию, плана кровли на основе разработанного планировочного решения, разработка фасадного решения здания, оформление альбома эскизного проекта
    • Составление пояснительной записки
    Результат:
    • Понимание особенностей блокированной малоэтажной застройки, умение с нуля выполнять проекты планировочных решений такого типа
    24 часа теории
    48 часов практики
  • 10. Архитектурная физика малоэтажного жилого дома
    Содержание курса:
    • Климатология: основная характеристика, климатические факторы и их воздействия на здания, климатическое районирование
    • Теплотехника: основы строительной теплотехники, актуальность в мире и России; энергетический паспорт проекта здания
    • Светотехника и акустика
    Задания на курсе:
    • Расчет инсоляции помещения в здании; определение коэффициента естественной освещенности и выполнение теплотехнического расчета конструкции
    Результат:
    • Понимание принципов архитектурной физики: климатологии, теплотехники, акустики и т. д.
    24 часа теории
    36 часов практики
  • 11. Строительные материалы для архитектора
    Содержание курса:
    • История строительства и возникновения строительных материалов
    • Свойства натурального камня, дерева и керамики
    • Материалы на основе неорганических (минеральных) и органических вяжущих веществ
    • Применение бетона, металла и других материалов
    • Лакокрасочные и изоляционные материалы
    Задания на курсе:
    • Выполнение рисунка под покраску стен комнаты, используя простые геометрические формы заданных размеров
    • Расчет необходимого количества краски для рисунка
    Результат:
    • Понимание свойств природных и искусственных стройматериалов, умение подбирать материалы для реализации проектов
    22 часа теории
    26 часов практики
  • 12. Практикум: архитектурно-строительные решения малоэтажных жилых зданий
    Содержание курса:
    • Строительные системы малоэтажных жилых зданий
    • Фундаменты малоэтажных жилых зданий
    • Конструктивные элементы малоэтажных жилых зданий
    Задания на курсе:
    • Разработка конструктивного решения малоэтажного жилого здания, подбор конструктивных элементов
    • Выполнение альбома чертежей раздела АС проектной документации
    • Составление пояснительной записки
    Результат:
    • Умение разрабатывать архитектурно-строительные решения малоэтажных жилых зданий и формировать отдельные разделы проектной документации
    26 часов теории
    46 часов практики
  • 13. Инженерное оборудование зданий
    Содержание курса:
    • Общие сведения о подземных коммуникациях. Принципы размещения и способы прокладки подземных коммуникаций
    • Основные разделы инженерного оборудования зданий, конструктивные схемы, основные элементы и методы проектирования
    • Принципы проектирования инженерных сетей и оборудования зданий
    Задания на курсе:
    • Составление задания для рабочих-смежников по инженерным сетям
    Результат:
    • Понимание устройства инженерных сетей и инженерного оборудования малоэтажных зданий, умение закладывать их при проектировании
    18 часов теории
    30 часов практики
  • 14. Инженерная геодезия для архитектора
    Содержание курса:
    • Общие сведения о геодезии. Топографические карты и планы
    • Проведение геодезических измерений: нивелирование, угловые измерения, топографическая съемка
    • Вертикальная планировка территории: основные понятия, методы проектирования рельефа, геодезические расчеты
    • Геодезические работы на строительной площадке и проектирование рельефа
    Задания на курсе:
    • Выполнение геодезических расчетов при проектировании горизонтальной площадки
    Результат:
    • Понимание, как и для чего проводятся основные расчеты и измерения в инженерной геодезии
    18 часов теории
    30 часов практики
  • 15. Основы градостроительного проектирования малоэтажных жилых зданий, включая предпроектный анализ
    Содержание курса:
    • Основные понятия: предпроектный анализ, как способ определения круга задач, в рамках поставленной цели и выбора оптимального способа их решения, исходя из действующих правовых норм, имеющихся ресурсов и ограничений. Структура предпроектного анализа
    • Структура градостроительной документации. Подходы в регулировании застройки
    • Основные методы проектирования: метод комбинаторики, художественное проектирование, методика изучения прототипов и аналогов, основные цели и задачи, анализ полученных результатов
    Задания на курсе:
    • Предпроектный анализ территории
    • Разработка проекта планировки территории квартала блокированной жилой застройки
    • Подбор ассортимента и разработка технологии посадки деревьев/кустарников и устройства цветника
    • Разработка технологии устройства газона
    Результат:
    • Понимание основ градостроительного проектирования малоэтажных жилых зданий; умение проводить предпроектный анализ территорий и применять ключевые методы проектирования
    32 часа теории
    40 часов практики
  • 16. Практикум: архитектурное проектирование индивидуального жилого дома
    Содержание курса:
    • Объемно-планировочные решения зданий
    • Основы проектирования конструкций зданий, элементы здания
    • Требования к пожарной безопасности индивидуальных жилых зданий и санитарно-гигиеническим параметрам индивидуальных жилых зданий
    • Архитектурно-пространственное решение здания в окружающем пространстве. Видеоэкология, цветовое восприятие
    Задания на курсе:
    • Разработка проекта планировочного решения с учетом требований эргономики, противопожарной защиты, функциональных и конструктивных требований, разработка итогового планировочного решения
    • Выполнение альбома чертежей раздела АР индивидуального жилого дома
    • Выполнение альбома чертежей раздела АС индивидуального жилого дома
    • Составление пояснительной записки
    Результат:
    • Отработка на практике навыков проектирования индивидуальных жилых домов с учетом требований эргономики, противопожарной защиты и т. д.
    20 часов теории
    70 часов практики
  • 17. Инженерная подготовка и благоустройство территорий
    Содержание курса:
    • Основные принципы вертикальной планировки территории
    • Земляные работы
    • Инженерная подготовка территории. Защита от неблагоприятных факторов
    • Благоустройство и озеленение городских территорий
    Задания на курсе:
    • Выполнение плана благоустройства участка индивидуального жилого дома, составление сопутствующих ведомостей
    • Составление пояснительной записки
    Результат:
    • Знание принципов инженерной подготовки и технологий благоустройства и озеленения территории
    30 часов теории
    24 часа практики
  • 18. Основы ландшафтного проектирования малоэтажной застройки
    Содержание курса:
    • История формирования стилей в ландшафтной архитектуре
    • Теоретические основы ландшафтного проектирования
    • Растительность в ландшафтном проектировании
    • Проектирование объектов ландшафтной архитектуры
    Задания на курсе:
    • Подбор древесно-кустарниковых растений
    • Разработка разбивочного и посадочного чертежей участка
    • Расчет баланса территории
    Результат:
    • Умение разрабатывать планы и чертежи для прилегающих к зданиям территорий, подбирать декоративные растения и создавать проекты благоустройства
    32 часа теории
    22 часа практики
  • 19. Организация архитектурно-строительной деятельности, включая архитектурный менеджмент и управление проектами
    Содержание курса:
    • Система администрирования архитектурной деятельности. Формы собственности проектных организаций. Корпоративная система администрирования. Стратегическое рыночное управление. Архитектурная деятельность, основанная на знаниях. Вступление в СРО
    • Сопровождение процесса проектирования, этапы разработки проектной документации и завершение проекта
    • Календарное планирование, состав и содержание проектной документации. Состав и содержание проектной и рабочей документации
    • Экспертиза проектной документации (государственная, негосударственная, экологическая). Порядок подачи документов на экспертизу. Сроки прохождения и результаты экспертизы
    • Контроль и регулирование проекта. Завершение проекта. Контроль и регулирование предметной области проекта. Расписания работ проекта, стоимости проекта. Закрытие контрактов проекта. Послепроектное обслуживание объекта. Авторский надзор
    Задания на курсе:
    • Разработка и описание структуры проектной организации
    Результат:
    • Понимание принципов, по которым организуется архитектурно-строительная деятельность, знание основ архитектурного менеджмента и управления проектами
    30 часов теории
    24 часа практики
  • 20. Практикум: презентация архитектурного проекта малоэтажного жилого дома
    Содержание курса:
    • Общие данные о проекте
    • Составление пояснительной записки и оформление альбома архитектурно-строительных чертежей
    • Архитектурно-художественное решение фасадов здания, архитектурная подача проектного решения
    • Архитектурно-пространственное решение здания в окружающем пространстве. Видеоэкология, цветовое восприятие
    Задания на курсе:
    • Составление общих данных для архитектурно-строительного проекта
    • Выполнение разбивочного плана участка индивидуального жилого дома
    • Итоговое оформление альбомов чертежей части разделов проектной документации здания
    • Итоговое оформление пояснительных записок к разделам проекта
    • Разработка подробного фасадного решения здания, 3D-модели и визуализаций
    • Выполнение компоновки баннера для архитектурно-градостроительного решения здания
    • Выполнение презентации (в том числе устной) своего проекта
    Результат:
    • Умение презентовать собственные архитектурные проекты малоэтажных жилых домов и выполнять итоговое оформление всей необходимой документации
    14 часов теории
    58 часов практики
Для обучения необходимо

Для комфортного и эффективного прохождения курса вам понадобится персональный компьютер или ноутбук с установленными программами из пакета Microsoft Office: Power Point, Word или аналогичными редакторами текстов и презентаций. Также потребуется программа для работы с PDF-файлами.

Список изучаемых программ:

  • ArchiCAD 

 

Дополнительно вы получите доступ к вебинарам по теме курса, например:

  • «Основные тенденции и требования к объектам жилищного строительства»
  • «Профессия Архитектор: от здания до города»
  • «Выполнение архитектурно-строительных чертежей в ArchiCad 25»

  • «Кто есть кто в архитектурно-строительном процессе?»
  • «Комплексное благоустройство: как архитектор создает комфортную среду»
  • И еще 100+ вебинаров по архитектуре в записи
сообщество

Как вы станете архитектором

Зачисляетесь, получаете доступ к личному кабинету
Изучаете видеолекции и текстовые материалы курса в удобные день и время
Осваиваете дополнительные материалы по теме, смотрите онлайн-вебинары, посещаете воркшопы
Выполняете практические задания и проходите тесты, открываете доступ к следующим модулям
Разрабатываете проекты зданий и выполняете другие практические задания.
Разрабатываете архитектурно-строительный раздел проектной документации здания
Проходите итоговое тестирование по всей программе обучения
Формируете портфолио, находите клиентов и зарабатываете!
Выгодное поступление
Успейте присоединиться к ближайшему набору и получите новую профессию со скидкой 20%

Преподаватели курса

Почему АНО ДПО «НАРХСИ»

10 лет работы в группе компаний AcademCity
более 30 курсов для архитекторов, строителей и инженеров
более 10 000 слушателей и выпускников
2000 вебинаров в базе знаний
  • Институт-партнер академии дизайна
  • Обучение с нуля до PRO
  • Обратная связь от экспертов

Поступите на курс с другом или коллегой

  • Начните учиться вместе, и вы оба получите скидку 15% от стоимости обучения.
  • Скидка суммируется с другими спецпредложениями.

Отзывы

Почему выгодно учиться в НАРХСИ

Программа переподготовки Архитектурно-строительное проектирование с присвоением квалификации «Архитектор» в НАРХСИ
Программы переподготовки в профильных организациях
Программа Архитектурное проектирование в других онлайн-школах

Стоимость обучения

Стоимость обучения

Стоимость обучения

от 5 795 руб/мес
19 600- 20 300 руб/мес
20 500- 30 000 руб/мес

Длительность обучения

Длительность обучения

Длительность обучения

12 месяцев
очно/дистанц. от 5 мес.
от 1,5 мес.

Программа

Программа

Программа

1200 академич. час
500 - 1400 ак.ч
250- 550 ак.ч

Документ

Документ

Документ

диплом
диплом
сертификат
Начните учиться сейчас и платите частями
  • Первый платеж:
  • Комфортные сроки: 3-6-10-12 месяцев
  • Рассчитывается от стоимости со скидкой

Оплата частями

  • На 2 месяца (раз в 2 недели) без комиссии
  • На 4-6 месяцев с комиссией
  • Рассчитывается от стоимости со скидкой
Подробности вы можете уточнить у менеджера во время звонка
Стоимость обучения
Скидка
-25% До 17 апреля
от 6 633 Р

в месяц при оплате частями, без переплаты

106 135 Р 79 600 Р

Срок обучения — 12 месяцев
Обучение с выдачей диплома

В стоимость входит:

  • 20 дисциплин — теория и практика проектирования малоэтажных зданий
  • практические задания с персональной обратной связью от преподавателей
  • проект малоэтажного жилого дома для портфолио
  • диплом о профессиональной переподготовке с присвоением квалификации «Архитектор»
  • бессрочный доступ к материалам курса после успешного завершения
  • дополнительные вебинары онлайн и в записи, доступ к базе знаний на все время обучения и еще 90 дней после выпуска
Показать еще

Варианты оплаты
Вы также можете позвонить нам самостоятельно по номеру 8 800 550-76-72
Звонок для вас абсолютно бесплатный

Вопросы и ответы

Нужно ли инженерное образование, чтобы учиться на программе?

Профиль вашего образования для поступления на курс не имеет значения. Вы сможете освоить малоэтажное проектирование вне зависимости от профиля базовой подготовки. Важно, чтобы у вас был диплом о среднем профессиональном или высшем образовании по любой специальности.

Сколько времени займет прохождение курса?

Учебный план курса рассчитан на 52 недели (около 12 месяцев). За это время вы освоите 20 тематических блоков, выполните все практические задания и разработаете ваш итоговый архитектурный проект малоэтажного здания. У вас будет 2-4 и более недели на то, чтобы в комфортном темпе изучить материалы по каждой дисциплине.

Защищать итоговый проект нужно будет очно?

Нет, ни на одном этапе вам не придется приезжать в учебный центр — курс полностью дистанционный. Вы сдадите итоговый проект в электронном виде и получите персональные рекомендации преподавателя, которые помогут улучшить работу и выгодно представить ее в вашем портфолио.

Получу ли я документ о квалификации и когда?

Да, после успешного завершения курса вы получите диплом о профессиональной переподготовке с присвоением квалификации «Архитектор». Срок подготовки документа — до 14 рабочих дней. Получить его можно лично в нашем офисе (по возможности) или заказным письмом.

Можно ли получить налоговый вычет за это обучение?

Да, если вы официально трудоустроены и платите НДФЛ, можно оформить налоговый вычет — возврат 13% от стоимости курса. Для этого нужно будет подать документы в Налоговую службу. Чтобы узнать о вычете подробнее и получить помощь в оформлении документов, обратитесь к менеджеру, когда будете записываться на курс.

В моем дипломе будет указано, что обучение проходило дистанционно?

Нет, форма обучения в дипломе не указывается — по законодательству это не обязательно. Дистанционный формат курса будет обозначен только в вашем договоре об обучении.

Заказать звонок

Мы перезвоним Вам
в ближайшее время